Casa semindipendente in vendita

Ferrara Di Monte Baldo, Strada provinciale 8
€ 349.000
12 locali 12 locali
500 Mq 500 Mq
9 bagni 9 bagni

Casa semindipendente in vendita

Ferrara Di Monte Baldo, Strada provinciale 8

Descrizione annuncio

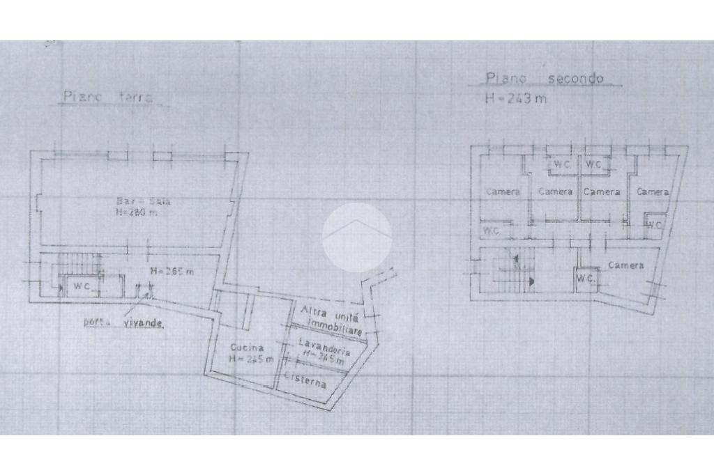
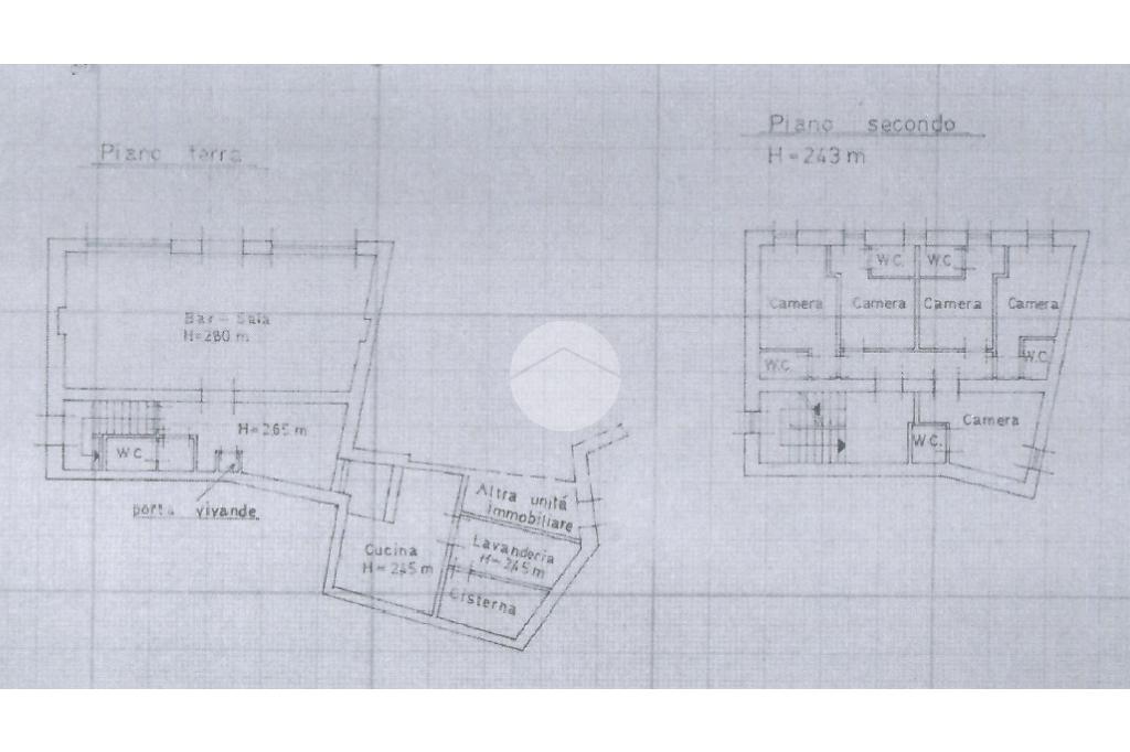
Struttura alberghiera tra le più storiche e conosciute a Ferrara di Monte Baldo, in posizione strategica e panoramica.

L'albergo è situato nella piazza principale di Ferrara, risulta così essere comodo ai vari servizi ed al parcheggio pubblico .

L'albergo è distribuito su tre livelli e vanta un bel plateatico di ca. 45mq affacciandosi sulla strada di principale passaggio con vista aperta sul monte Baldo.

Il piano terra è stato ristrutturato nel 2003 e destinato ad uso bar, impiantistica e servizi sono perciò stati adeguati alle normative vigenti del momento.

La soluzione è attualmente suddivisa in due unità: una residenziale ed una alberghiera; si presta perciò a varie tipologie di progetti, è infatti ideale sia come struttura turistico-ricettiva (B&B, albergo, ristorante) che per trasformazione in edifici residenziali.

Mostra tutto

Nelle vicinanze

Trasporto pubblico Trasporto pubblico
Trasporto pubblico
150 m
Negozi Negozi
La bottega del paese
60 m
Ristoranti Ristoranti
Al Cacciatore
1,4 Km
Rifugio Novezzina
2,5 Km
Malga Ime
2,6 Km
Rifugio G. Chierego
2,8 Km
Stella Alpina
2,9 Km
Mostra tutto

Caratteristiche

Rif.:
61107072
Piano:
3 di 3 (Piano su più livelli)
Camere da letto:
7
Arredamento:
Assente
Condizionamento:
Assente
Ascensore:
No
Mostra tutto
Prezzo Prezzo
€ 349.000
Rata mutuo Rata mutuo
€ 1.646 / mese
Spese annue Spese annue
€ 0
Proponi il tuo prezzoProponi il tuo prezzo

Classe Energetica

E
E
E
E
E
E
E
E
E
EP globale non rinnovabile:
121.32 kW h/m² anno
EP globale rinnovabile:
34.08 kW h/m² anno
EP invernale del fabbricato:
EP estiva del fabbricato:
Anno di costruzione:
1927
Riscaldamento:
Autonomo
Tipo impianto:
A radiatori
Tipo alimentazione:
GPL

Ti interessa visionare l'immobile?

Fissa un appuntamento  Fissa un appuntamento

Richiedi informazioni

Clicca su Leggi per aprire l'informativa
* Questi campi sono obbligatori

Calcola il tuo mutuo

Semplice e senza impegno
Anticipo

( % )
Mutuo

( % )

pochi semplici passi

inserisci i tuoi dati
Questionario completato
Grazie per aver richiesto un appuntamento senza impegno con un nostro Consulente del Credito e Assicurativo.

Hai inserito correttamente tutti i dati necessari e a breve riceverai una e-mail con un link da convalidare per inviare i tuoi dati.
Affiliato
Garda Associati Srl
Via Sandro Pertini, 19 37013 Caprino Veronese (VR)

Il nostro staff


  • Tommaso Speziali
    Affiliato

  • Isabel Natalie Blume
    Collaboratrice

  • Jacopo Bridi
    Collaboratore

  • Elena Paola Castellani
    Coordinatrice

  • Chiara Mengali
    Collaboratrice

  • Francesca Quarta
    Responsabile
Via Sandro Pertini, 19 37013 Caprino Veronese (VR)
Zona: Lago di Garda - Entroterra - Caprino Veronese- Rivoli V.se - Ferrara M/B
Mostra su mappa
Orari: Orari: dal lunedì al venerdì 9:00-12:30 / 15:00-19:30 sabato 9:00 - 12:30
Affiliato
Garda Associati Srl
Via Sandro Pertini, 19 37013 Caprino Veronese (VR)

2025 Tecnocasa Franchising S.p.A. - P. IVA 08365160152 - Via Monte Bianco 60/A 20089 Rozzano (MI). Ogni agenzia ha un proprio titolare ed è autonoma. Privacy policy | Policy utilizzo | Cookie policy